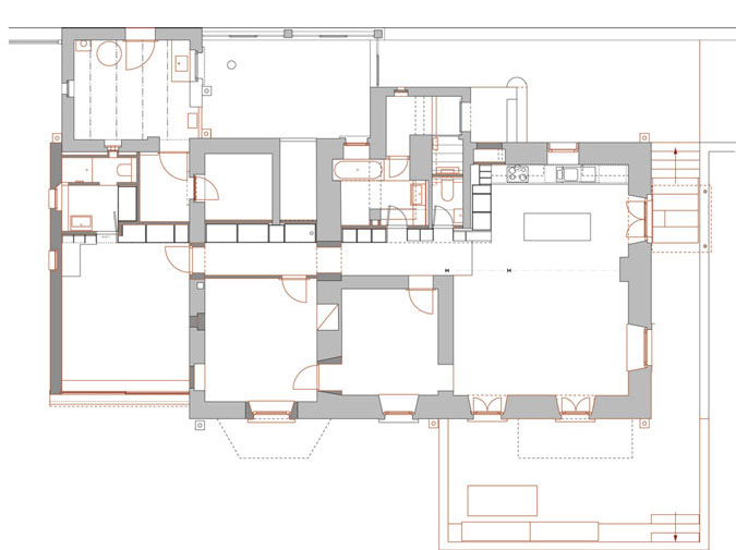
Les travaux réalisés au rez-de-chaussée de ce bâtiment ont permis de doubler et de remanier totalement les espaces habitables à disposition.
Une extension, l’excavation des vides sanitaires et des reprises structurelles ont été réalisées dans ce but.
L’ajout des deux terrasses donne à chaque appartement un espace extérieur réservé.
Le projet développe une distribution en longueur qui donne accès à toutes les pièces et réunit toutes les armoires et lieux de rangement de l’appartement, libérant ainsi les pièces des meubles trop imposants, nécessaires sans cela.
Entreprises principales :
Arthur Spagnol, ingénieur civil
Lucariello Sàrl, maçonnerie
Jossevel et fils, menuiserie et agencements
Dedominici, peintures
Sauthers et fils, mosaïques et pierres
Vogel Fenster AG, fenêtres
Photos: Corinne Cuendet













