2003-2005 Transformation et rénovation d’une maison de maître, datant de 1875, en une maison de trois appartements, à Morges.
Note 2 du recensement architectural.
Première phase d’un projet de transformation et restauration complète d’une maison de maître de quatre niveaux.
Selon la demande du propriétaire, le projet d’ensemble a consisté à mettre en place trois appartements séparés sans perdre la perception de se trouver avant tout dans la grande et vieille maison de son enfance.
Les menuiseries, les finitions et les ornementations existantes ont été pour la plupart restaurées, certaines déposées et réutilisées, très peu perdues.
Les éléments du projet ajoutés à l’existant sont réalisés avec des matériaux et une expression actuels, mais en accord étroit avec les matériaux existants.
Les installations électriques et sanitaires sont refaites à neuf, les installations de chauffage adaptées, une installation de ventilation dans les locaux humides est installée à neuf.
L’ensemble des produits utilisés sont respectueux de l’environnement et des savoirs faire traditionnels et anciens ont été utilisés pour les parties de restauration.
Après la création de ces trois appartements, la présence de la grande et vieille maison a pu être conservée, la lumière, le parfum, l’acoustique et le « grain » sont toujours là.
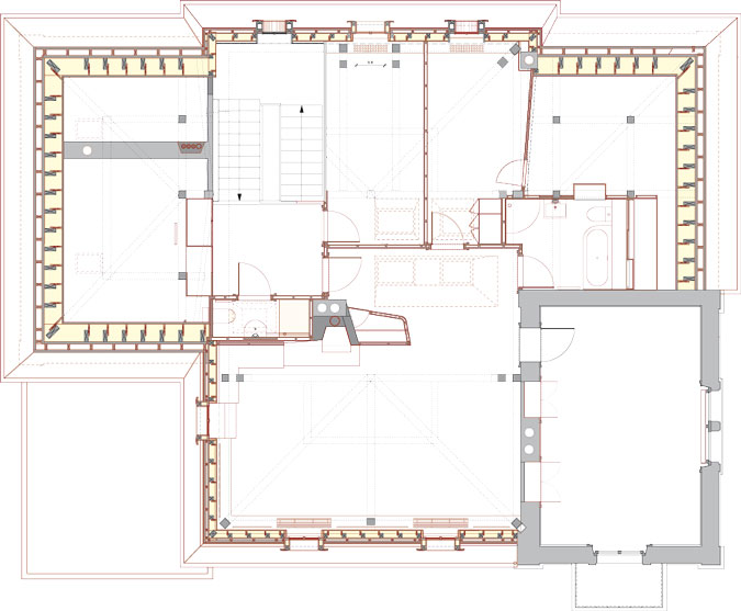
Lors de cette première phase de travaux, les toitures et les combles ont été totalement démontés, la charpente mise à nu, traitée et assainie. Le 1er étage a été aménagé en appartement.
Une restauration minimale des façades a été entreprise afin de conserver la marque du temps, mais de stopper toute dégradation.
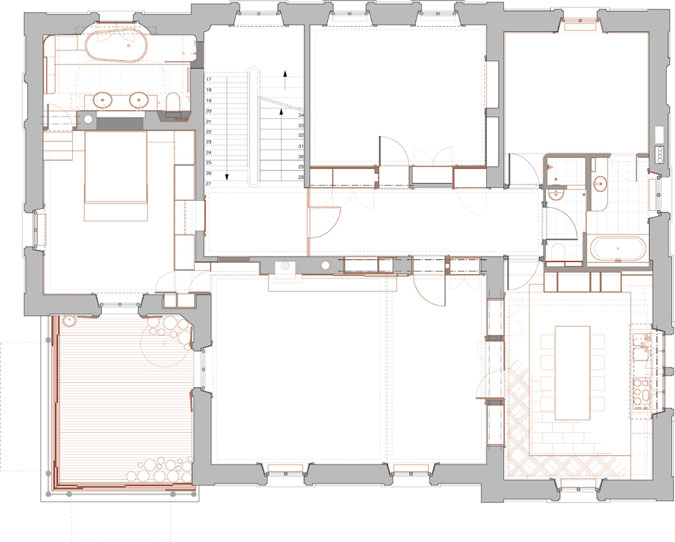
Combles:
La configuration des combles est totalement neuve.
Le parti a été pris de ne montrer la charpente que là où elle pouvait apparaître de manière équilibrée, complète, et en cohérence dans l’espace qu’elle couvre.
Ailleurs elle a été masquée et traversée de lanterneaux en plâtre blanc, pour éclairer le centre de l’étage, éloigné des fenêtres.
Un appartement de 4,5 pièces avec deux salles d’eaux a été mis en place. Une des chambres et sa salle de douche sont indépendantes, accessibles depuis le palier d’escalier.
1er étage:
Les changements de fonction des pièces ont été très profond. Cet étage ne possédait pas de « services », en dehors d’une très vieille salle de bains. Un appartement de 5 pièces a été mis en place.
Trois salles de bains, une buanderie, une grande cuisine et un jardin d’hiver ont été créés. Deux chambres ont été réunies en un grand séjour.
Pour autant le cloisonnement n’a pas été bouleversé, ainsi les plafonds, les moulures, les planchers et les menuiseries ont pu être en grande partie conservés.
Les travaux se sont déroulés en gardant le rez-de-chaussée habité par les propriétaires.
Entreprises principales :
Ramos constructions SA, maçonnerie, Pully
Sapin SA, électricité, Morges
Von Auw SA, sanitaires chauffage, Préverenges
Jean-Pierre Masson, plâtrerie peinture, Prilly
Ballenegger SA, menuiserie, Lausanne
Tisch et Reymond SA, parquets, Lausanne
Desponts cuisines SA, Assens
Patrick Good SA, fumisterie, Prilly
Arthur Spagnol, ingénieur civil











