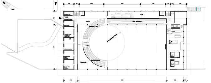
Projet de construction d’un complexe comprenant un centre équestre, des logements un bar et un club-house.
Surface intérieur 4500m2.









Projet de construction d’un complexe comprenant un centre équestre, des logements un bar et un club-house.
Surface intérieur 4500m2.








