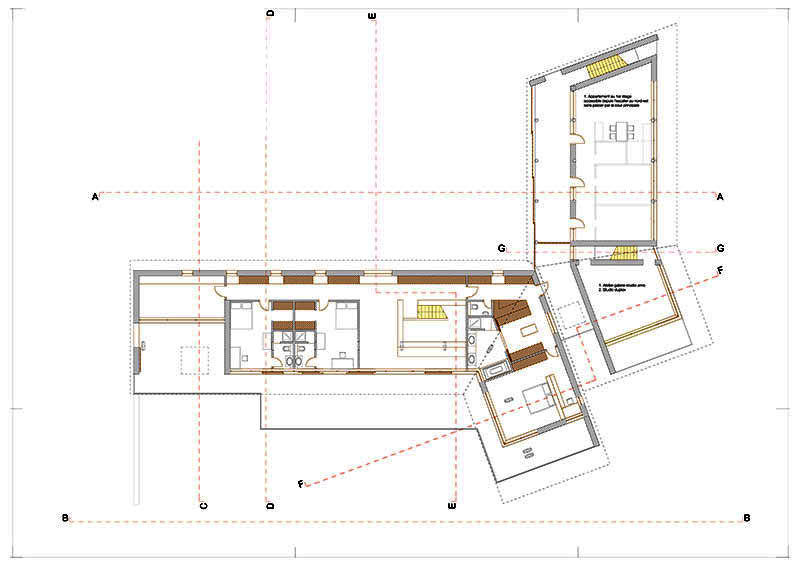
Projet de maison de maître au bord du lac, avec dépendance, jetée, abris à bateaux et aménagement du parc.
Surface intérieure 650m2.








Projet de maison de maître au bord du lac, avec dépendance, jetée, abris à bateaux et aménagement du parc.
Surface intérieure 650m2.







