Transformations intérieures d’une ancienne bâtisse bernoise des salines de Salins, Ollon, Vaud
Immeuble d’activités, propriété de l’état de Vaud,
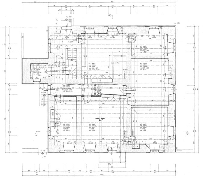
Etude de faisabilité en 2008
Bâtiment inscrit en note 2 au recensement architectural du canton, bâtiment construit dès la fin du XVIe siècle et fortement remanié au XVIIIe.
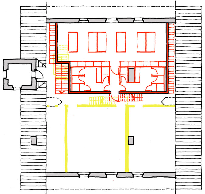
Projet de rénovation et de transformation du bâtiment en une auberge/pension de moyenne montagne avec salles de séminaires.
Analyses et expertises préalables menées en collaborations avec une historienne de l’art et des experts des différentes spécialités.
Comandataires :
Quartal, économiste de la construction, Vevey,
Brigitte Pradervand, historienne de l’art, Ollon
Roger Simond, expert en maçonnerie et crépis anciens,
Gilles Bollschweiller, charpente















