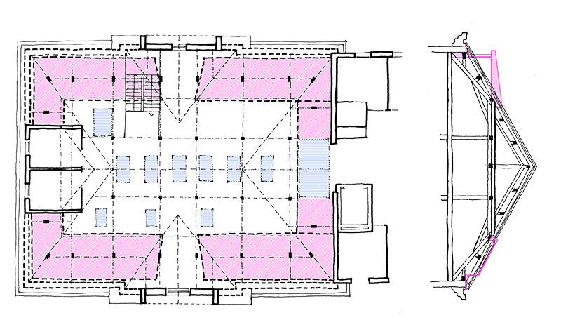
Projet de transformation et extension de l’hôpital de la Providence.
Création de 14 chambres et 5 locaux de soins. Surface env. 400m2.


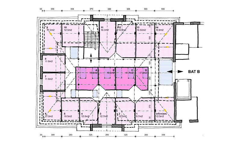
Projet de transformation et extension de l’hôpital de la Providence.
Création de 14 chambres et 5 locaux de soins. Surface env. 400m2.

