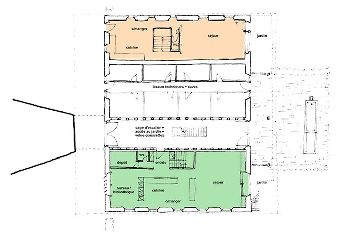
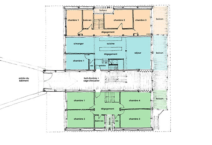
Projet pour la création de logements dans un grand rural protégé par la direction du patrimoine.
Proposition de deux variantes, esquisse des différents plans d’appartements et des dispositions d’apport de vues et de lumière.
Estimation des coûts et de la faisabilité auprès des autorités.












