Sauvegarde, restauration, transformation du Château la Roche à Ollon.
Inscrit en note 1 au recensement architectural.




Phase I et II
– Sauvegarde de l’édifice en ruine
– Reconstruction d’une charpente de toiture et de la couverture
– Restauration partielle des 4 façades
– Restauration et aménagements partiels des locaux dans l’est du bâtiment.
Sous la direction de l’atelier d’architectes Nicollier et Pilloud SA




Phase III
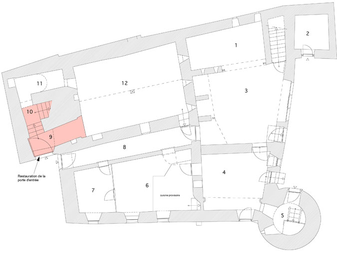
Travaux de conservation et de consolidation des structures porteuses dans la partie sud-ouest du bâtiment.
Mise en place de dalles en béton qui rigidifient et stabilisent tout l’angle sud-ouest.
Consolidation et remise en service de l’escalier à l’italienne.
Sous la direction de Piuz+Ortlieb+Nicollier architectes SA
Collaboration à la réalisation: Alexandre Piuz












