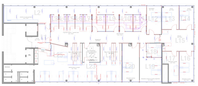
Transformations intérieures
Immeuble de bureaux, propriété d’une fondation de droit public.
2007-2009, études et réalisation par étapes
Transformation de la disposition des locaux, création de parloirs et de guichets sécurisés, aménagements de salles de travail insonorisées.
Travaux réalisés en cours d’exploitation des locaux par confinements et déménagements progressifs.
Entreprises principales :
Jossevel et Fils, Puidoux
Ciel électricité SA, Lausanne
Masson, plâtrerie, Prilly
Wütrich, peintre, Aclens






