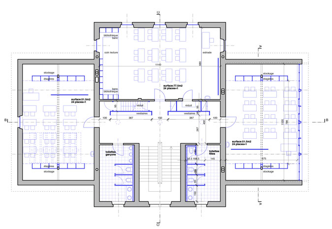
Transformation, rénovation et aménagement du préau du collège de la Chiésaz. En collaboration avec E. Collaud.
Surface utile: 600m2 intérieurs, 2200m2 extérieur.
Maître de l’ouvrage: Commune de St-Légier – La Chiésaz.
A. Piuz comme comandataire externe de E. Collaud, Vevey.





